R01/
Residential building
Многофамилна жилищна сграда
• 1 Сграда • 9 Апартамента • 12 Гаража
Многофамилна жилищна сграда
R01/
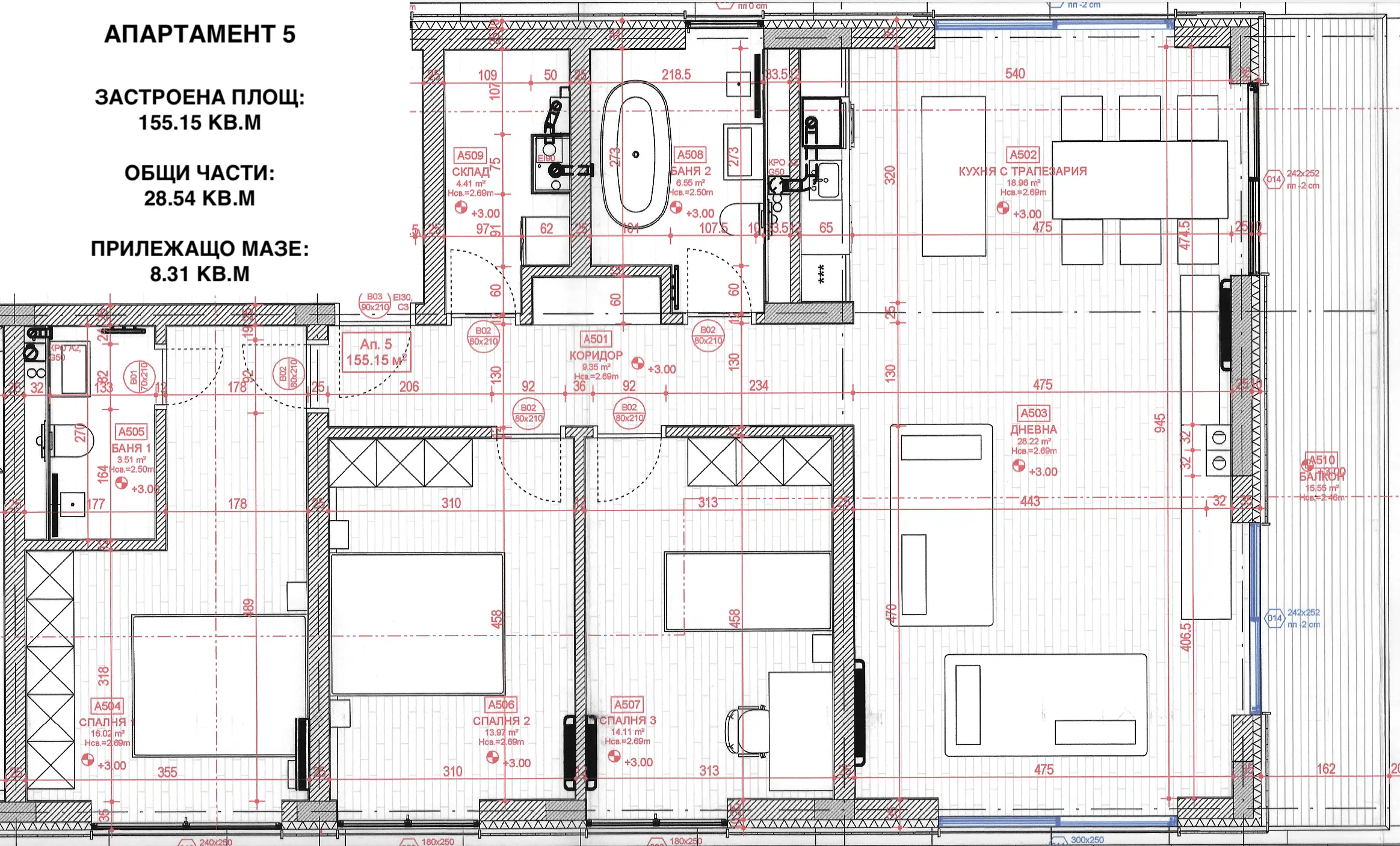
Имотът се намира на ул. “Бистришко шосе” 73 във в.з. “Малинова долина” 2 А част, непосредствено над „Резиденшъл Парк София“, един изцяло нов жилищен квартал. Сградата е с девет апартамента, с квадратури от 100 кв.м. до 200 кв.м., разположени на партер и три жилищни етажа. Обектът разполага с терасирано дворно пространство с площ около 1000 кв.м. В подземното ниво се намира гаражът за автомобили, мотоциклети и велосипеди. За всеки апартамент е предвиден подземен гараж, който се заплаща допълнително.
Жилищната сграда е в непосредствена близост до множество съоръжения и локации:
- автобусна спирка
- 3 детски градини
- ИКЕА
- РИНГ МОЛ
- парк Камбаните
- стадион Бистрица
- парк и язовир Панчарево
Цялостният проект и стилистика на сградата се вписва хармонично в този нов квартал със специфичен чар. Големите балкони и лоджии предоставят невероятна гледка и същевременно предлагат уединение. Сградата е с монолитна стоманобетонна конструкция. Външните ограждащи и вътрешните преградни стени се изпълняват от керамични блокове. Фасадата е решена като вентилируема, окачена фасада с архитектурни детайли. Дограмата е алуминиева с прекъснат термомост и трислоен стъклопакет.
Сградата е оборудвана с:
- Асансьор
- Видеонаблюдение
- Газово отопление
С избора на материали и дизайн се цели да се създаде усещане за градско жилищно пространство на едно зелено място, отговаряйки на нуждите и начин на живот на съвременните млади семейства.




Архитектурни разпределения

